MARKUS KNOBLAUCH - IHR BÜRGERMEISTER VON WESTHAUSEN
MARKUS KNOBLAUCH - IHR BÜRGERMEISTER VON WESTHAUSEN

Wohnen

Neubau Seniorenwohnen im Finkenweg

Neues Baugebiet "Josefskapelle" in Westhausen

Erweiterung Baugebiet "Rinnenbach" in Lippach

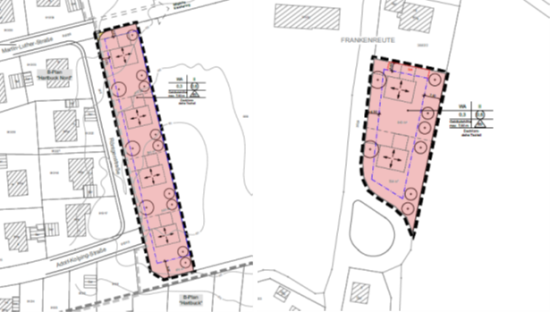
Kleinere Baugebietsabrundungen in der Hardtbucksiedlung und in Frankenreute

Bauliche Nachverdichtung im Innenbereich - z. B. Bebauungsplan "Schwenksbrunnen II" in der Bohlerstraße für Tiny-Häuser

Druckversion | Sitemap
© Markus Knoblauch